Дом Комфорт 112
- НАЧАЛО
- СГЛОБЯЕМИ КЪЩИ
- ГОТОВИ ПРОЕКТИ
- Дом Комфорт 112

Дом Комфорт 112
112 м² • 1 етаж








ЗП
112 м²
РЗП
112 м²
Стаи
4
Спални
3
Бани
2
Тераси
1
Етажи
1
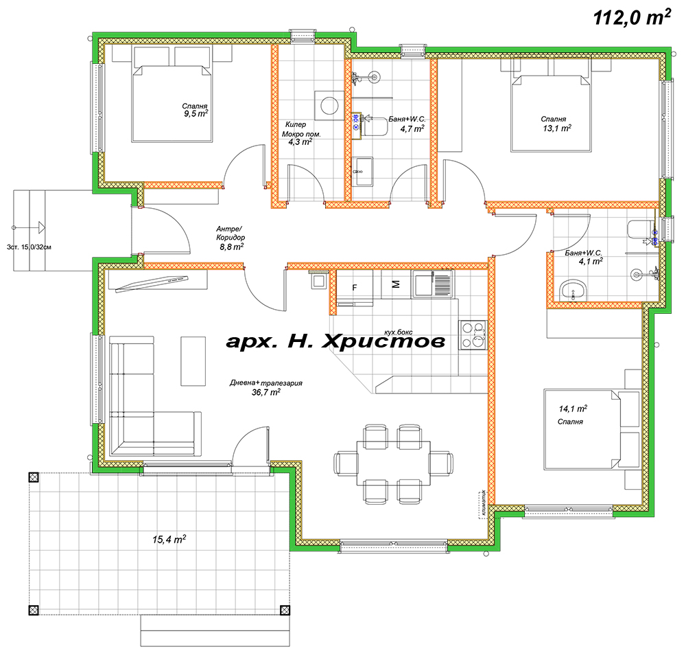
Описание на проекта
Функционален едноетажен дом с площ 112 кв.м, съчетаващ удобство и практичност. Включва всекидневна с кухненски бокс, 3 спални, 2 бани, мокро помещение, коридор и покрита веранда. Идеално решение за модерно семейство, което цени удобството на едно ниво.
Проектант: арх. Н. Христов